+7 4922 60-01-01 +7 4922 60-01-01

2-комнатная квартира, 66 м2

108 333 ₽/м2
15/17 этаж
Цена
7 150 000 ₽
Ипотека от
43 541 ₽/мес
Ваш эксперт по недвижимости: Ирина

Описание

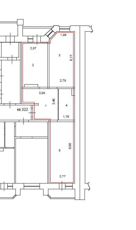
Продается 2-комнатная квартира в ЖК «Содышка», Горького 133а, общей площадью 68,95 кв.м.

Квартира с панорамным остеклением лоджий на 15 этаже.


Общая площадь: 68,95 кв.м:

- Жилые комнаты: 16,7 и 18,5 кв.м.

- Кухня: 13,6 кв.м.

- Лоджии: 2,8 и 3,1 кв.м.

- Совмещенный санузел 5,9 кв.м.


Квартира продается с отделкой White Box, которая включает в себя все необходимые подготовительные работы. В рамках этой отделки выполнено выравнивание стен: грунтовка, гипсовая штукатурка и шпатлевка. Полы подготовлены с помощью полусухой стяжки. Проведена электроразводка, включая ввод слаботочных систем для интернета, телевидения и домофон. Выполнена отделка и утепление, установлен теплый пол на обеих лоджиях. Проведены коммуникации под кондиционер. Планировка предусматривает просторную гардеробную.

Квартира с двойной капитальной стеной, соседей не услышите. А также выполнена шумоизоляция потолка.


Из кухни и одной из спален открывается великолепный панорамный вид на пойму реки Содышка.


Дом кирпично-панельный с автономной газовой котельной.


В жилом комплексе Содышка построен многоуровневый паркинг. Кроме того, проектом предусмотрены: детские и спортивные площадки, супермаркет, аптека и пр.


Дом сдан!

Продажа по ДКП. Отдел продаж застройщика.


Расположение

г. Владимир улица Горького, дом 133А

Похожие квартиры

Хотите жить в ЖК Соколиный парк? Отличный выбор!

Закажите консультацию специалиста прямо сейчас и мы подробно ответим на все ваши вопросы!
#ипотека
Альфа-выгодная ипотека!
ставка 0,11%, 8% или 13,89% на ваш выбор

О компании

Отдел продаж
+7 4922 60-01-01
Сотрудничество
op@stroimgroup.ru
Мы в социальных сетях
На сайте используются cookie.
Нажимая принять или продолжая просмотр сайта,
вы разрешаете их использование.