+7 4922 60-01-01 +7 4922 60-01-01

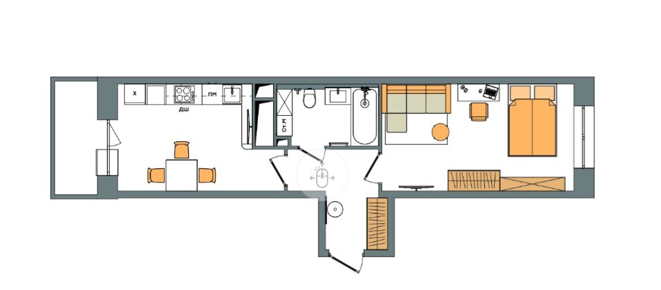
1-комнатная квартира, 41.86 м2

8/18 этаж
Цена
4 950 000 ₽
Ипотека от
30 144 ₽/мес
Ваш эксперт по недвижимости: Дарья

Описание

Продается однокомнатная квартира в ЖК Hово Парк, д 49А.


ДОМ СДАН!!!


Своя крышная котельная.

Квартира-распашонка — окна на разные стороны, что делает проживание особенно комфортным.

Просторная кухня 12,87 кв.м. станет отличным местом для кулинарных экспериментов и семейных обедов. Из кухни есть выход на панорамную лоджию, где можно наслаждаться утренним кофе или вечерним отдыхом.

Площадь комнаты 15,98 м² позволяет использовать ее как отдельную спальню или совместить с зоной гостиной.

Квартира расположена на 8 этаже, общая площадь: 41,86 кв.м:

- Жилая комната: 15,98 кв.м.

- Кухня: 12,87 кв.м.

- Лоджия: 4,07 кв.м.

- Совмещенный санузел 5,00 кв.м.


Квартира предлагается с отделкой White Box, которая включает в себя все необходимые подготовительные работы. В рамках этой отделки выполнено выравнивание стен: грунтовка, гипсовая штукатурка и шпатлевка. Полы подготовлены с помощью полусухой стяжки. Проведена электроразводка, включая ввод слаботочных систем для интернета, телевидения и домофона. Установлены окна в квартире и на лоджии, включая откосы и подоконники из ПВХ. Также установлена улучшенная входная дверь и радиаторы отопления. Вам остается только завершить косметический ремонт: поклеить обои, установить натяжной потолок, плитку, сантехнику, межкомнатные двери, а также подобрать мебель и декор.


Жилой комплекс с огороженной территорией включает в себя два монолитно-кирпичных дома высотой 15 и 18 этажей. На первом этаже предусмотрены колясочные, остекленные входные группы и дизайнерские холлы, создающие уютную атмосферу с самого порога. В обоих домах первый этаж отведен под офисные помещения, что обеспечивает удобство для жителей и предпринимателей. В цокольном этаже дома 49Б расположен отапливаемый паркинг на 29 машиномест, обеспечивающий комфортное хранение автомобилей. В цокольном этаже дома 49А находятся кладовые, предлагающие дополнительные возможности для хранения вещей.

Продажа осуществляется по договору уступки от физлица.


Расположение

г. Владимир улица Нижняя Дуброва, дом 49А

Похожие квартиры

Хотите жить в ЖК Соколиный парк? Отличный выбор!

Закажите консультацию специалиста прямо сейчас и мы подробно ответим на все ваши вопросы!
#ипотека
Альфа-выгодная ипотека!
ставка 0,11%, 8% или 13,89% на ваш выбор

О компании

Отдел продаж
+7 4922 60-01-01
Сотрудничество
op@stroimgroup.ru
Мы в социальных сетях
На сайте используются cookie.
Нажимая принять или продолжая просмотр сайта,
вы разрешаете их использование.